Azonosító: 5216

Eladó tégla építésű lakás

Bp., XII. kerület, Kútvölgy

636.64 MFt
1616 ezer €
Alapterület
146 m2
Erkély
112 m2
Szobák
4 szoba
Emelet
1
Épület szintjeinak száma
3
Belső szintek
2
Fűtés
hőszivattyú
Komfort
luxus
Lift
van
Kertkapcsolatos
nem
Légkondícionált
igen
Belmagasság
3 m-nél alacsonyabb
Energiabesorolás
A+
Fürdő és wc
egyben
Pince
van
Kilátás
panorámás
Állapot
új építésű
Tetőtér
penthouse
Fekvés
dél
Parkolóhely típusa
teremgarázs hely
Parkolóhely használatának feltétele
megvásárolható
Garázs ára
20 M Ft

Az otthon-választás a legideálisabb lokáció megtalálásával kezdődik. Kútvölgy egyik legnagyszerűbb elhelyezkedésű telkén épülő lakások minden szempontból megfelelnek a vevői elvárásoknak.

Családok számára jó szívvel ajánljuk a kertkapcsolatos lakást, az igazán nagy teraszra vágyók pedig elsősorban a különleges penthouse lakásba tudnak beleszeretni. Kimagasló műszaki felszereltség, elegáns megjelenés. Értékesítési irodánkban minden részletet át tudunk beszélni.

Lakásonként 2 db teremgarázs hely vásárolandó 20 M Ft/hely értékben, valamint egy tároló helyiség (1,7 M Ft/m2; 6 m2 - 11,5 m2).
Várható átadás: Beköltözhető.
A belső fotók látványképek egy megvalósítható kialakításról.

Jelen hirdetés szerződéskötési ajánlatnak nem minősül. Pontos részletekért keresse értékesítési irodánkat!
A beruházó az árváltozás jogát fenntartja.

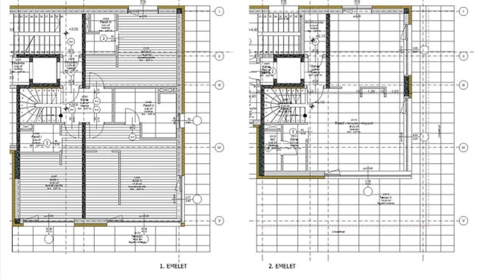
A kétszintes panorámás penthouse lakás 4 szobás, 146,32 m2 alapterületű és összesen 112 m2 terasszal rendelkezik.

Csorba Dóra
+36 70 329 7700

E-mailben is elküldheti kérdéseit, észrevételeit a következő űrlap kitöltésével