Azonosító: 5603

Kiadó tégla építésű lakás

Bp., VI. kerület, Belső-Terézváros

788 eFt/hó
2000 €
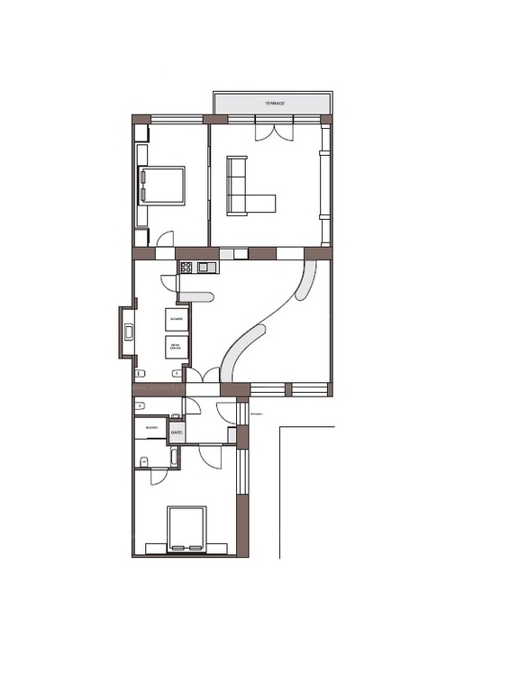
Alapterület
111 m2
Szobák
3 szoba
Emelet
1
Belső szintek
1
Komfort
duplakomfortos
Lift
van
Bútorozott
igen
Gépesített
igen
Kisállat
nem
Légkondícionált
igen
Fürdő és wc
külön és egyben is
Állapot
felújított
Parkolóhely típusa
utca, közterület

Elegáns, berendezett, erkélyes lakás bérelhető az Andrássy út szomszédságában. A konyha terében kellemes étkezőhely is kialakult, a szeparált nappali és két hálószoba mellett két fürdőszoba és infra szauna is található a lakásban. Felszerelt, bútorozott lakás, ide élmény hazatérni.

Parkolás: utcán lehetséges, vagy közeli mélygarázsban az Ó utcában.

Csorba Dóra
+36 70 329 7700

E-mailben is elküldheti kérdéseit, észrevételeit a következő űrlap kitöltésével