Azonosító: 6553

Eladó tégla építésű lakás

Bp., II. kerület, Rézmál

617.455 MFt
1567 ezer €
Tervezett átadás:
2027. 1. negyedév
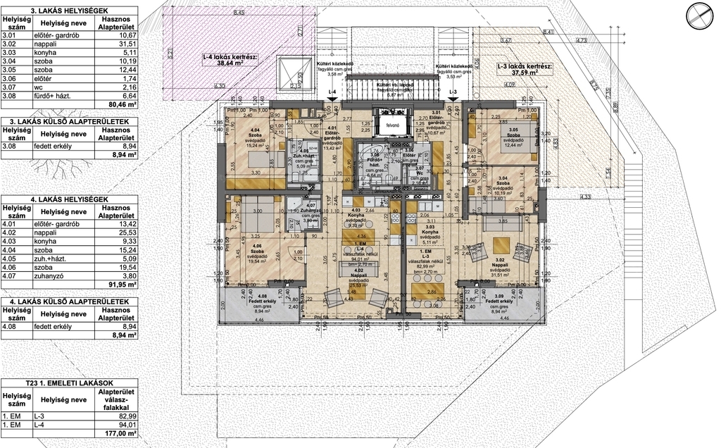
Alapterület
176 m2
Erkély
18 m2
Kert
79 m2
Szobák
5 szoba
Emelet
1
Épület szintjeinak száma
4
Fűtés
hőszivattyú
Komfort
luxus
Lift
van
Kertkapcsolatos
nem
Belmagasság
3 m-nél alacsonyabb
Energiabesorolás
A+
Fürdő és wc
külön és egyben is
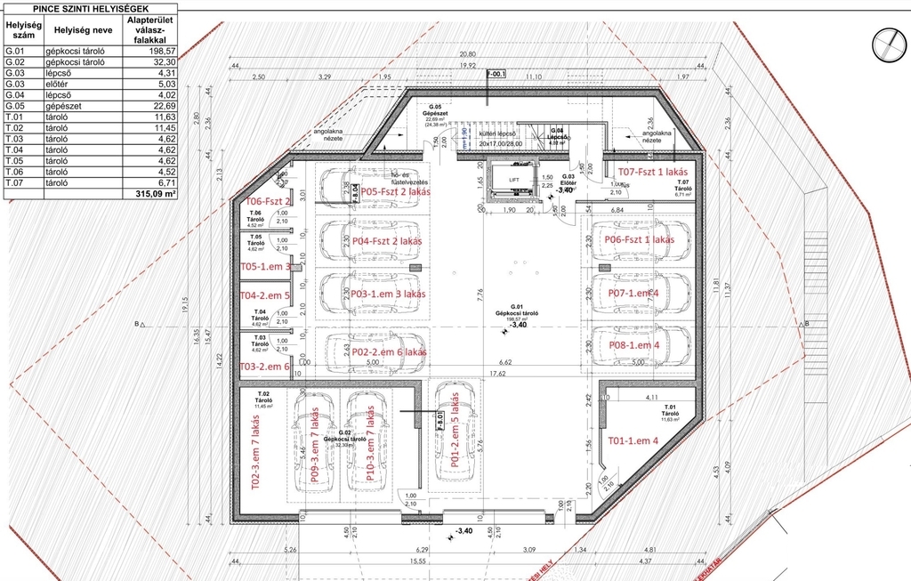
Pince
van
Állapot
új építésű
Tetőtér
nem tetőtéri
Parkolóhely típusa
teremgarázs hely
Parkolóhely használatának feltétele
megvásárolható
Garázs ára
18 M Ft

TAILOR-MADE & UNIQUE

Válassza a legjobb budai elhelyezkedésű társasházat, ahol a hibátlan rózsadombi elhelyezkedés mellett a lakás méretével kapcsolatban sem kell kompromisszumot kötnie.
Nem gond, ha az itt látható tervekben szereplő méretnél kicsivel kisebb vagy sokkal nagyobb méretű otthont képzelt el!
Csak az ÖN által megfogalmazott igény számít, egyedileg kialakított lakás-méretek és belső elrendezés!
Ön megálmodja, mi megépítjük személyre szabott otthonát! Kertkapcsolatot szeretne vagy az emeleti erkélyes lakás az ideális?
A 3 emeletes épületben a 60-340 m2 közötti terület formálásának csak a fantázia szab határt.
Egy teljes szint 176 m2. M2 ár 3,1 M Ft-tól.
A lakásokhoz parkolóhelyek a teremgarázsban 18 M Ft/hely, tárolóhelyiségek 6-9 M Ft/helyiség vételáron megvásárolhatók.

Ingyenes tanácsadással és tervezéssel állunk rendelkezésére!

A belső fotók látványképek egy megvalósítható kialakításról.
Várható átadás: 2027.I.n.év.

Jelen hirdetés szerződéskötési ajánlatnak nem minősül. Pontos részletekért keresse értékesítési irodánkat!

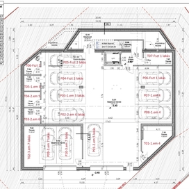
A két I. emeleti lakás összenyitásával kialakítható lakótér 5 szobás, 176 m2 alapterületű, 18 m2-es terasszal és 78,64 m2-es kizárólagos használatú kertrésszel rendelkezik. A lakáshoz két, vagy akár három parkoló (P3, P7, P8 számú) is megvásárolható a teremgarázsban 18 M Ft/hely vételáron, valamint egy, vagy két tárolóhelyiség (T01, T05 jelű, 6 és 7 M Ft) is.
Az földszinten is elérhető egy hasonló méretű és elrendezésű lakás.

Az alaprajz módosítható, igény szerint akár több hálószoba is kialakítható.

Csorba Dóra
+36 70 329 7700

E-mailben is elküldheti kérdéseit, észrevételeit a következő űrlap kitöltésével