Azonosító: 6735

Eladó tégla építésű lakás

Bp., XII. kerület, Istenhegy

297.19 MFt
754 ezer €
Alapterület
89 m2
Erkély
32 m2
Kert
107 m2
Szobák
4 szoba
Emelet
1
Épület szintjeinak száma
3
Belső szintek
1
Fűtés
hőszivattyú
Komfort
összkomfortos
Lift
van
Kertkapcsolatos
igen
Légkondícionált
igen
Belmagasság
3 m-nél alacsonyabb
Energiabesorolás
A+
Fürdő és wc
külön és egyben is
Pince
van
Kilátás
kertre néző
Állapot
új építésű
Tetőtér
nem tetőtéri
Parkolóhely típusa
teremgarázs hely
Parkolóhely használatának feltétele
benne van az árban

Istenhegy központi, de természet-közeli, rejtett szegletében új, harmonikus otthonok vannak készülőben.
A tervező szakított az utóbbi évek egyszerű vonalvezetést preferáló szemlélettel és egy elegáns, formabontó, szokásostól eltérő tér-kihasználású épületet alkotott, nagy hangsúlyt fektetve a különösen nagy méretű, jól kihasználható teraszokra.

Kis társasház, családi házas környezetében, variálható belső terekkel, korszerű energetikával.
A völgy felé nyíló lakó- és a nappali szobákhoz nagy méretű teraszok tartoznak, valamint a földszinti és I. emeleti lakásokhoz kertkapcsolat is tervezett.

A belső fotók látványképek egy megvalósítható kialakításról.
Várható átadás: 2025.III.n.év.

Jelen hirdetés szerződéskötési ajánlatnak nem minősül. Pontos részletekért keresse értékesítési irodánkat!

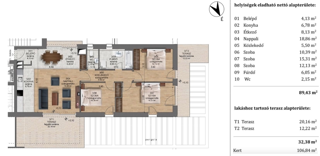
Az I. emeleti 4 szobás lakás 89,43 m2 alapterületű, 12,22 és 20,16 m2-es erkélyekkel és egy 106,84 m2-es kizárólagos használatú kertrésszel rendelkezik.
A lakáshoz 2 parkolóhely és egy 13,58 m2-es tárolóhelyiség tartozik.

Csorba Dóra
+36 70 329 7700

E-mailben is elküldheti kérdéseit, észrevételeit a következő űrlap kitöltésével