Azonosító: 6741

Eladó tégla építésű lakás

Bp., II. kerület, Pasarét

322 MFt
817 ezer €
Alapterület
75 m2
Erkély
33 m2
Szobák
3 szoba
Emelet
földszint
Épület szintjeinak száma
3
Belső szintek
1
Fűtés
hőszivattyú
Komfort
összkomfortos
Kertkapcsolatos
igen
Légkondícionált
igen
Belmagasság
3 m-nél alacsonyabb
Energiabesorolás
A+
Fürdő és wc
külön és egyben is
Pince
van
Kilátás
kertre néző
Állapot
új építésű
Parkolóhely típusa
teremgarázs hely
Parkolóhely használatának feltétele
megvásárolható

Mindössze 5 tulajdonos élvezheti ennek a hangulatos és elegáns új és korszerű társasháznak az előnyeit.
A formatervezett épület praktikus és funkcionálisan is átgondolt belső tereket rejt. A teraszok különös hangsúlyt kaptak, ami kapcsolatot teremt a lakás és a természet között.

• Talajszondás hőszivattyús fűtő-hűtő rendszert, mennyezeti hőleadókkal.
• Sem a kertben sem a tetőn nem lesznek gépek. A tető zöldtetős lapostető lesz.
• Mindegyik lakáshoz 2 db parkoló és külön tároló is fog tartozni (ezek 46,9 M Ft- 57,5 M Ft közötti csomagáron megvásárolhatók). A parkolókhoz elektromos autótöltési hálózat lesz kialakítva.
• Mesterséges szellőztetés lesz a lakásokban.
• A homlokzati nyílászárok előtt zsaluziákat telepít a beruházó.
• Programozható okos otthonos kiépítés lesz mindegyik lakáshoz.
• Ősfás kert, gondozott kialakítással.
• Mindegyik lakáshoz jakuzzit ad az építtető.
• Szerelt igényes homlokzatburkolatok, teraszokon üvegkorlátok épülnek.

A megvásárolható lakások:
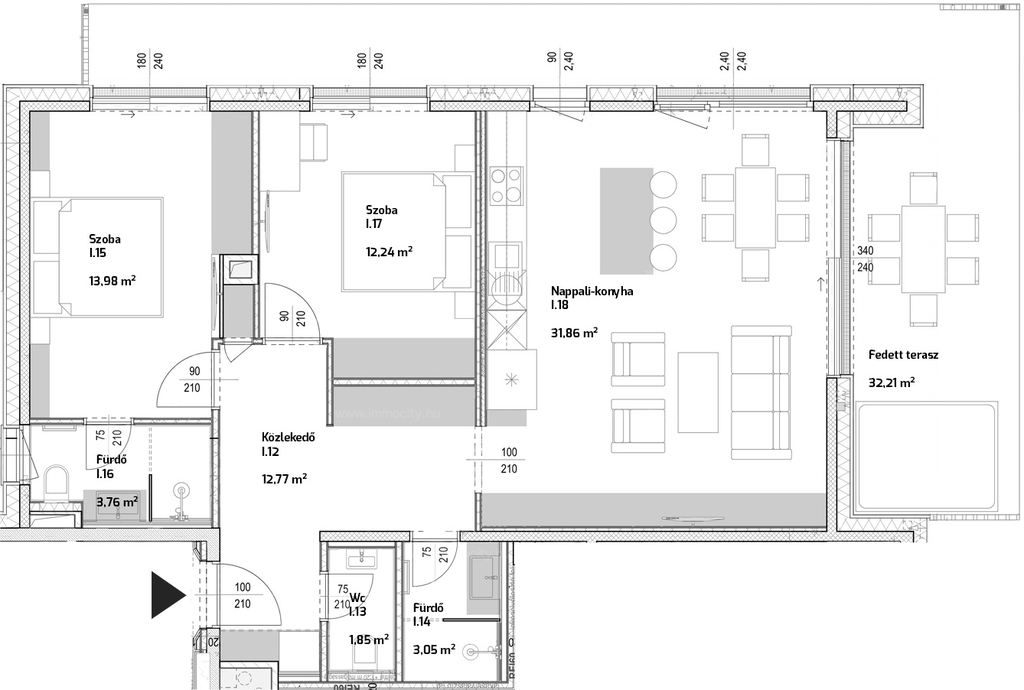
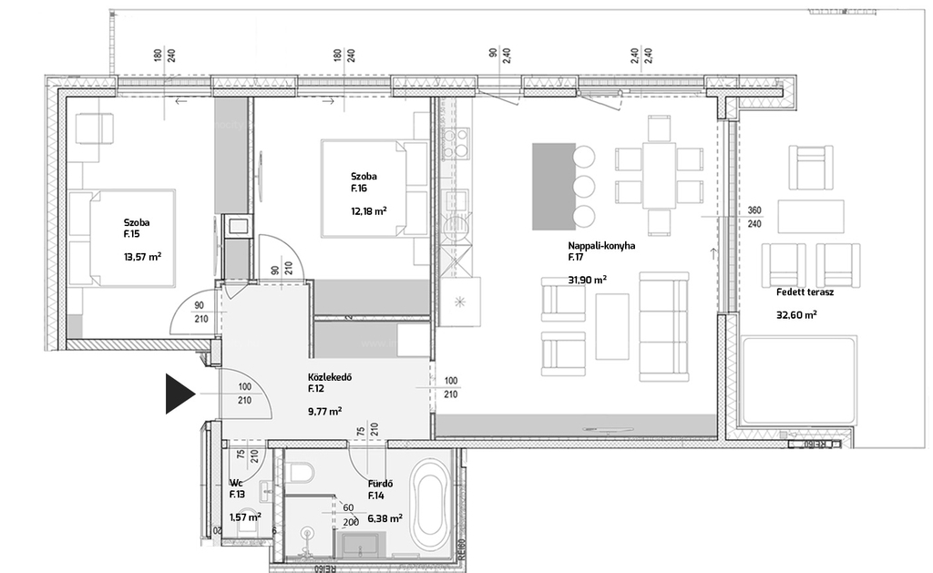
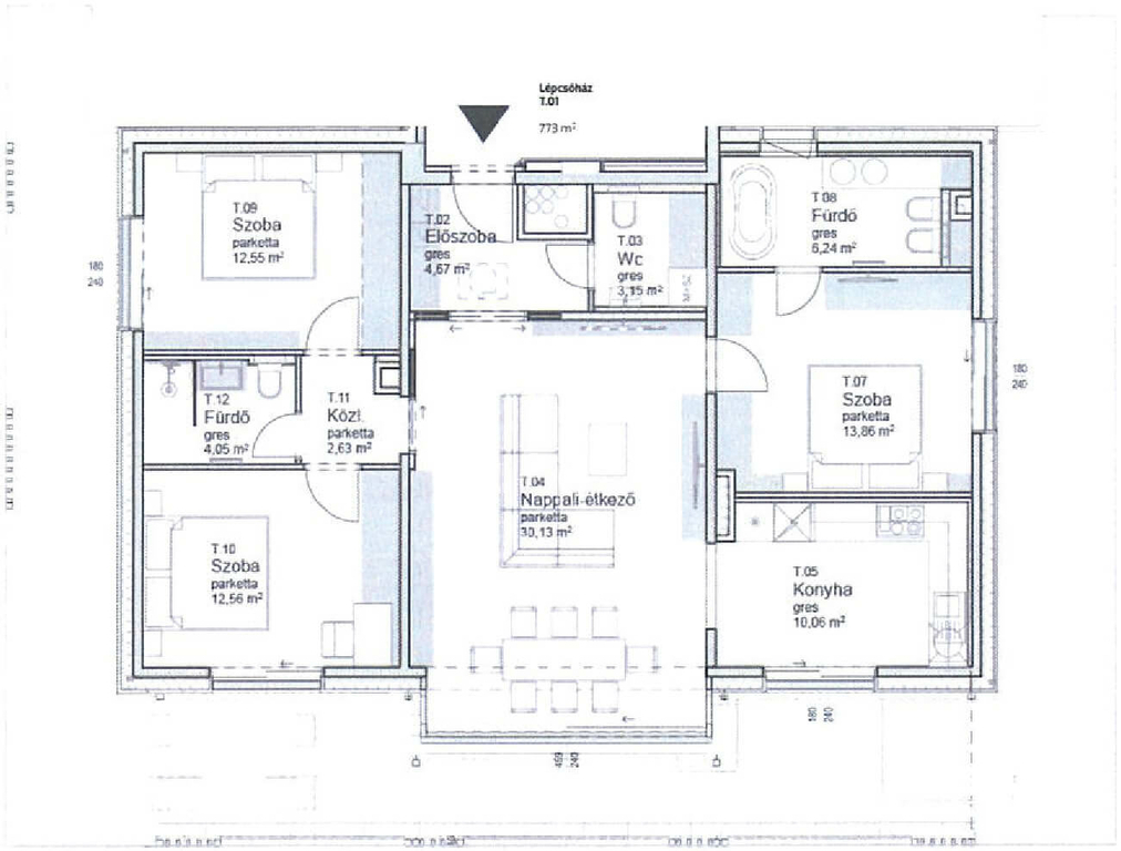
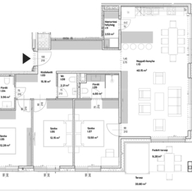
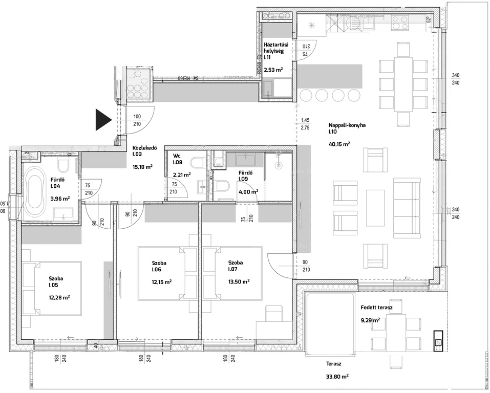
Fszt.1. 322 M Ft: 3 szobás lakás, 75,37 m2 a lakás + 32,60 m2 terasz
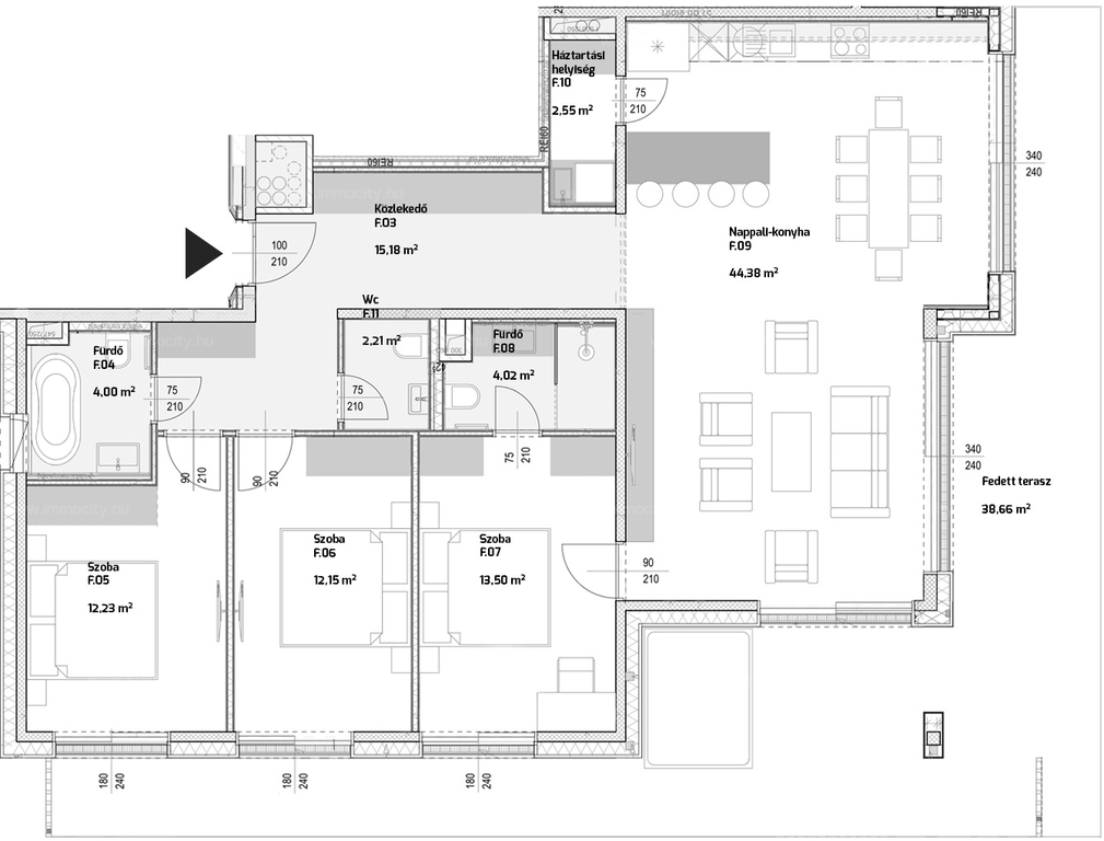
Fszt.2. 508 M Ft: 4 szobás lakás, 110,22 m2 a lakás + 55,10 m2 terasz
I.em.1. 336 M Ft: 3 szobás lakás, 79,51 m2 a lakás + 32,21 m2 erkély
I.em.2. 470 M Ft: 4 szobás lakás, 105,96 m2 a lakás + 43,09 m2 erkély
II.em.1. 531 M Ft: 4 szobás lakás, 99,88 m2 a lakás + 80,55 m2 terasz

Csorba Dóra
+36 70 329 7700

E-mailben is elküldheti kérdéseit, észrevételeit a következő űrlap kitöltésével